妹妹婚後是跟公婆同住,相處融洽但在生活上還是有挺多不方便的地方,所以決定在不遠的仁武區買個房,能有照應也不用同屋簷。目前尚未生小孩,有養狗,未來預計再養隻貓。
陸續看了很多房子,不是價格太高,就是屋況很舊需要花很多錢整修,妹妹夫妻倆也有耐心,畢竟買房是一輩子的事情,不能倉促決定,最後很幸運等到這間屋況不錯的房子!
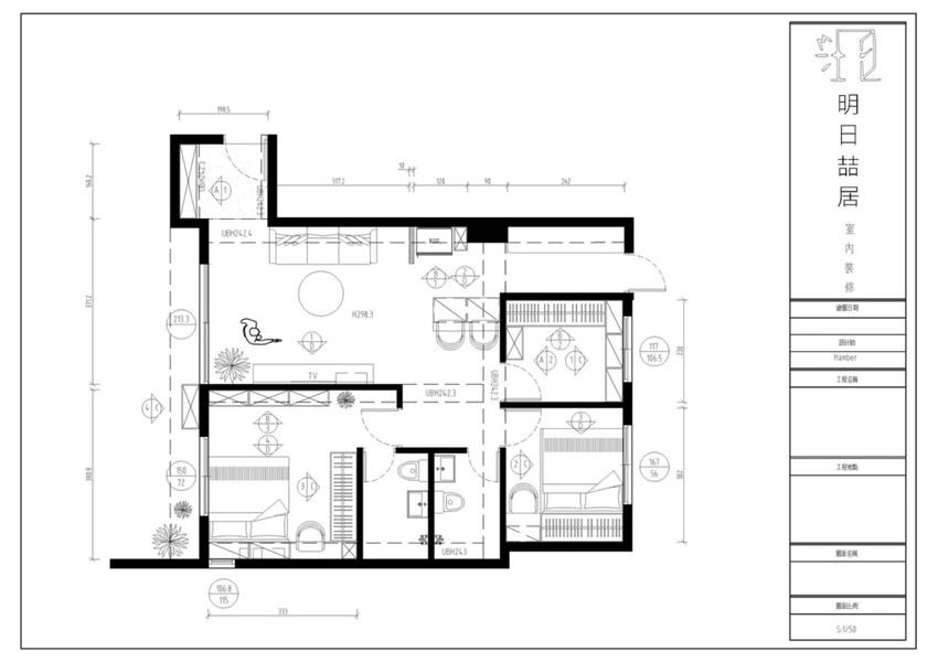
▼中古屋大樓3房2廳約24坪。
原本我爸媽建議我妹找統包,裝潢費比較便宜。
但聊過他們想要的設計,我則是建議交給設計公司比較保險,讓設計師來統籌風格、配色等等,總之比較省心。
找了兩間感覺不錯的設計公司來評估,最後決定交給明日喆居室內裝修設計公司,第一當然是價格在預算內也比較便宜,第二是設計師小蔡雖然年輕但專業度讓人信服,在我妹他們想要的設計基礎上,做更完整的規劃和建議,有疑問也能清楚解答。
▼設計師小蔡提供的平面圖&3D圖,有和小蔡一起討論配色和材質,無法決定的地方就聽從小蔡的建議。
▼施工紀錄
每個工程進度小蔡都會按時回報,讓我妹夫妻倆也能安心上班。
實際完工照片
交屋當天我也有來,說實在有設計過的房子,就是樣樣順心!
看我妹反應就知道,走到哪驚呼到哪,每個設計都喜歡,果然實體的衝擊感更加強烈!
▼整體調性沉穩舒適,充滿平和氛圍。
以輕工業風格為主,色調上使用了許多清水模元素,例如仿清水模塗料,系統櫃板也局部搭配清水模。
照明使用軌道燈或是吸頂燈,呼應工業風元素。
▼玄關鞋櫃做懸空減少櫃體厚重感,放入兩人數量鞋子,空間也綽綽有餘。
▼懸浮電視櫃,底部是掃地機器人的家,也可能是未來貓咪的窩。
▼我妹養的馬爾濟斯,率先佔領吧台!
▼櫥櫃面板貼膜改色,紅棕色改為木紋淺色,住家色調更一致。
▼以前就聽我妹說很想要一個高昇抽拉櫃,今天終於實現了!已預見放滿調料的場景(我妹是調味料控,逛超市逛賣場看到新口味,絕對都會買回家試試)
▼主臥也貫徹清水模工業風調性,床頭牆面漆上仿清水模塗料。
▼造型層板,目前是展示用途,未來有養貓也可以當貓跳台。
▼簡約灰清水模搭配木紋,頗有質感。
▼床頭櫃可收納,品味兼具實用👍
▼一整牆面衣櫃。
▼衣櫃隱形把手設計,空間感更顯俐落。
▼主臥設計重點之一:香水展示櫃,鋁框灰玻璃
佔據空間與衣櫃不遑多讓,可見我妹夫妻倆人多愛香水(身為無香人不太懂,但擺起來挺漂亮的,每支香水瓶身很有特色)
▼次臥先當客房,未來有小孩可轉為小孩房,收納、書桌一應俱全。
▼另一間次臥則改成儲藏室,開放式矮櫃可放置寵物用品。
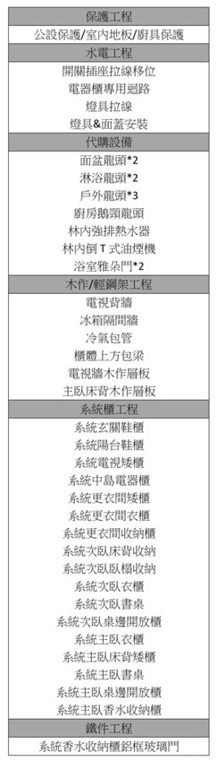
這次裝潢總共花了95萬左右,包含裝潢工程&部分電器,會在最後附上細項表格給大家參考。
我妹夫妻倆入住新家,我也很為他們高興,感覺又是一個新的里程碑!
灰色清水模真的很漂亮,有質感也耐看,雖然我爸媽還是不太懂為什麼牆面要弄成灰撲撲的樣子,不過房子是自己住的,符合自己心意最重要,在此祝福我妹他們住得開心!
設計公司:明日喆居室內裝修有限公司
設計師:Hamber小蔡・蔡明翰
手機:0988 913 232
地址:高雄市三民區遼寧二街6巷41號1樓
LINE線上諮詢&預約:https://line.me/ti/p/sP4HXBtefz
更多裝修設計案例:https://www.facebook.com/hamber1996









































