再過幾年小草、小花就要進入國中階段,到了男女有別的年紀,需要讓他們有各自的生活空間,所以想把原有的房間整理一下;相信大多數人都和我有既定印象,只有新成屋或整理好的二手屋才會有DM上美美又便於收納的生活儀式感,現有的房間整理往往就便宜行事,像我自己的房間,也是現成衣櫥、書桌、電視櫃擺一擺而已,生活上當然沒什麼問題,不過有時一些雜物只能放在地上和衣櫥頂上,有時就覺得是不是能有更好的選擇?
這次友人給我建議,現在的室內系統家具比以往成熟,甚至拆卸都很容易,預算上是會比現成的傢俱稍微高一些,但的確能有更好的空間使用;多看多聽不吃虧,就介紹他的設計公司 竹北歐岳系統家具室內設計 給我,說不定能給我更好的建議和想法~跟我聯繫的是Adam(徐進國)設計師,在電話中詢問了我目前需求,也知道我對系統傢俱的不熟悉與疑惑,就約了一天先讓我了解目前系統傢俱有哪些不一樣。
內容目錄
歐岳系統家具室內設計 位置及停車方式
竹北歐岳系統家具室內設計不是跑單幫的工作室,在竹北有店面和展示空間,店面就在遠百竹北後方的勝利五路,在路口的街角地段相當顯眼,門口就有自己的停車位方便停車,相當方便;我在出門前也有先GOOGLE一下,鄰近也有路邊和收費停車場。
若是從經國大橋下來,在這個路口左轉就可以到達
開車來的朋友可以在門口停車,來找設計師討論項目很方便
歐岳系統家具室內設計 環境介紹
1F客廳接待區
一樓是歐岳系統家具的接待中心,以家為中心的設計概念,不像以往經驗是死死板板的會客室或是會議空間,就像來到了鄰居家中作客一樣,褪下行裝換上輕便的拖鞋;值班的設計師從容的帶領我們到客廳的沙發區坐下簡單的寒暄。
我的其他平台:
聆聽需求
Adam,有著13年的設計經驗,在發展飛速的竹北、以親子為訴求的新竹,聆聽客戶的需求;我對他說的一句話倒是很深刻:『用你喜歡的樣子來設計你的家』,先知道客戶想要什麼、需要什麼,再依照現有空間去規劃設計;現在的新建案寸土寸金,和舊有的大坪數透天已然不同,如何在有限的空間創造視覺和空間感,成了被稱之為空間魔術師的他們首要之務。
以我來說,我是舊有空間的新規劃,我的重點就在小孩生活的舒適性,雖然小草、小花目前都是小學生,但希望能以未來國中、高中生的起居作為生活空間,起居、閱讀空間、衣物收納均衡,沒有想要特別著重在哪方面;為什麼我會這麼說呢?因為Adam在聊天的時候有提到一個案例,業主希望小孩房能有遼闊的視野感,不希望因為收納需求用櫃子塞滿空間,尤其是一個衣櫃就塞滿的蝸居;所以他依照客戶的這個想法,量身打造了以開放式的衣桿設還打造孩童的臥房。
現在小花自己就已經有一個滿滿的衣櫥,所以我看到的3D預覽圖的當下覺得如果是小花可能都不夠用,不過換個方向想,如果是掛著自己喜歡的衣服,倒也是賞心悅目。
B1實體展示空間
在Adam的帶領下,我們來到的B1的實體展示空間,利用真實的空間設計讓每位業主都能了解系統櫃的設計細節在哪裡;進口的板材設計、外表花色到現今的摩登設計與實用元素,都可以在這個囊括食衣住工育樂的空間完整呈現;進口的板材從接縫端就有ABS封邊設計,將比現成傢俱擁有更紮實的防水與穩固性,選用進口的五金料件,有供10000次以上的推拉使用推拉使用保證書,對於親水環境也有防水係數高的相對選擇。
舒適的生活也要有健康的環境,選用無甲醇的材質不僅對人體無害,也省去惱人的靜置時間
在接縫都封膠的板材在水中可維持3小時以上的防水也不膨脹
使用建材的取得都是進口,也有進口報關單
系統傢俱在現在的素材的模擬有很大的進步,可模擬成木紋、雲朵、大理石妝點生活中的任一處
B1設計可以觸摸的實體空間展示常用的系統設計
看得到會比自己腦補容易
小草、小花現在是大了點,否則在家有個遊戲室也可以
來到這小草、小花開始進行探險,多看看些創意的設計也可以啟發他們的想法。
系統做梳妝台也是可以喔
臥室空間也有擺設,床邊的小桌感覺很好用
收納的空間讓小草、小花滿有興趣,與家裡現在的收納方式有不少差別
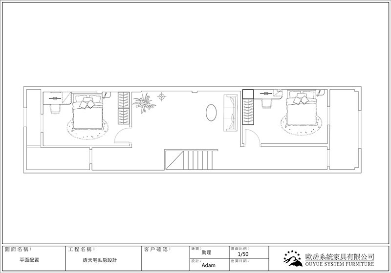
平面、立面丈量
與其他設計公司的不同,在設計與討論時就可以看到空間未來的樣子是歐岳系統家具的優勢,我想看看Adam對於小草、小花的房間會是怎麼設計很感興趣,馬上與Adam約好到家中丈量空間的時間。
我小時候的夢想是當個3D動畫動畫師也曾經有職場經驗,腦補立體3軸的呈現倒是沒有問題,但一般人對於平面和立面的較難有帶入感;與Adam歐岳系統家具在現場丈量尺寸後,馬上就現場繪製平面圖,在丈量各細節時同時用專業的經驗討論空間的優點與缺點;像以我目前的住所是一棟比我還要年長的老屋,古時候的建築技術沒有現在這麼好,說是一間建給梁柱的房子也不為過:早期建屋留下的不明柱體,短距離間就有一道樑柱的設計,原本也都是用傢俱遮擋的位置,在清空之後缺點呈現得更明顯。
因為這個樑柱的關係,我還記得當初包版的師傅說,若是為了平整包起來就損失不少空間,但留下空間卻又牆面不平整;就看看歐岳系統家具的設計了
手繪平面圖,在各個細節不是用大概而是如實呈現
在丈量的時候Adam就有些想法即時提供討論
這次的整理一開始都是自己簡單規劃,也學著時下的流行單面跳色,Adam很體貼地問這是小草、小花喜歡的顏色嗎?然後請助理協助記下來做為設計的色調
3D選染視角
再一次來到歐岳系統家具,是為了挑選喜歡的色調與喜歡的材質;Adam提到,現在系統櫃不僅提供功能與空間整合,現況修飾和色調的統一也是客群趨勢;在我初期提到的有衣櫃、書桌、單人加大的床鋪和收納空間,說實在我也因為對系統櫃的概念不大,所以在這樣侷限的需求下Adam幫我設計了這樣的規劃。
線稿由歐岳系統傢俱版權所有免費規劃,僅供客戶現場討論參考
原本在丈量時的規劃中,書桌迎著對外窗,不過因為原本的房子後面是水塔,所以在規劃上則採取的靠邊的左法;念書或許可以看看窗外,也有自然的透光。
歐岳提供的角度是另從窗的位置往裡看的方向,把書櫃結合書桌騰出更多空間,這樣的空間也就可以放下雙人床,否則我本來預計是放單人或是單人加大來維持可用空間。
3D圖示因為我有撰文需求經過協議才提供給我,一般是僅在公司內才能看到
床邊小桌的規劃我就很喜歡,在原本的牆面上有著當初舊有的插座,沒對齊我也覺得詭異的是為什麼不是一個四孔座面;這次的規劃利用系統的設計不僅遮蓋得原有的設計不良,也把插座延伸到易於使用的位置。雖然我相信在日後使用上一定也是會接上延長線使用,但是也便利了不少。
這裡的設計有利用書桌遮擋原有的不明柱體,讓空間呈現平整
樑柱部分的設計也是正對了現況修飾需求,Adam說現在的家長想法和目前的建案需求都不希望在小孩房間有邊邊角角,既有的樑柱也用設計包覆優化,也兼具功能性,不會太過兒童房的浮誇,對於長大中的小朋友還算不錯喔~
歐岳系統家具室內設計 營業時間地址
歐岳系統家具室內設計
地址 : 新竹縣竹北市勝利五路210號
電話 : 03 658 7111
時間 :
周一 ~ 周六 10:00 ~ 21:00
週日 : 09:30 ~ 18:00
網站 : https://www.ouyue.com.tw/








































